Jiné nebytové prostory v k.ú. Kolín a podíl na společných prostorech domu a pozemku

Stav
Nebylo podání
Číslo
250176
Druh
Online
Způsob licitace
Anglický
Dražební jistota
100 000 Kč
Nejnižší podání
1 500 000 Kč
Odhadní cena
2 500 000 Kč
Minimální příhoz
5 000 Kč
Maximální příhoz
Neomezený
Typ
Veřejná dražba
Začátek
29. 10. 2025 9:00
Konec
29. 10. 2025 9:30
Počet účastníků
0
Počet podání
0

Kontaktní osoba

Luděk Michal

733415413

ludek.michal@okdrazebnik.cz

Dražebník

OK dražebník a.s.

OK dražebník a.s.

Jiráskova 398, 33701 Rokycany

Popis

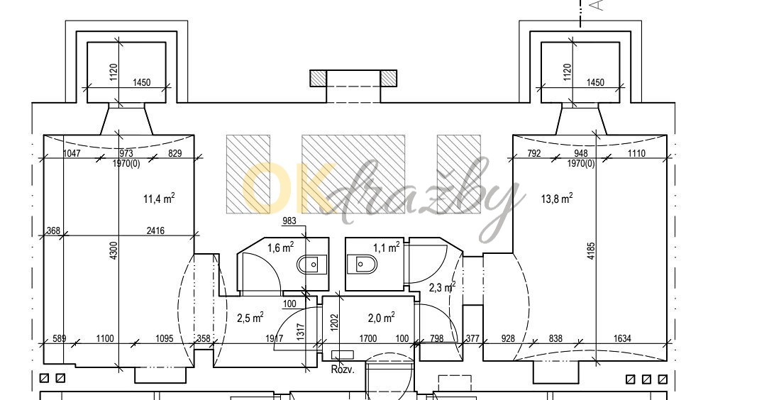
Předmětem dražby jsou dva samostatné nebytové prostory určené pro kancelářské využití (kolaudace na kanceláře je aktuálně v procesu), o celkové podlahové ploše 34,9 m² (bez započtení anglických dvorků), situované v suterénu nedaleko Borku v Kolíně.

Každá kancelář má vlastní zastřešený anglický dvorek, který zajišťuje přirozené denní osvětlení a větrání. Vzhledem k suterénnímu umístění se v prostorách drží mírně zvýšená relativní vlhkost (okolo 60 %), která je stabilizovaná přirozeným větráním. Pro maximální komfort lze doplnit o odvlhčovač.

Každá jednotka má vlastní WC s umyvadlem a přívodem teplé vody. K dispozici jsou kompletní rozvody elektřiny a internetu. Vytápění zajišťují elektrické přímotopy s dálkovým ovládáním přes mobilní aplikaci; spotřebu elektřiny lze sledovat a odečítat online.

Součástí prodeje je i architektonická vizualizace pro vybudování privátního wellness.

Hlavní vstupní dveře do prostor mají rozměr 1670 × 900 mm, jsou protipožární (dveře i zámek), s protihlukovou úpravou (klima 3) a ocelovou zárubní. Strop je snížený, tvoří jej klenba.

Věcná práva zatěžující nemovitosti, která dražbou nezaniknou: Prostory jsou pronajaty do 30. 6. 2026 na základě platné nájemní smlouvy. Nájem lze ukončit předčasně dohodou s nájemcem, případně může nový vlastník pokračovat v nájemním vztahu a plynule pobírat pravidelný výnos z nájmu.

Prohlídky

Prohlídka předmětu dražby proběhne po dohodě s organizátorem dražby. V případě, že žádný účastník nepotvrdí účast na prohlídce, nebude prohlídka organizována a bude použita pouze fotodokumentace která je dostupná na https://okdrazby.cz/drazba/16716. Kontakt na organizátora dražby 733 415 413, info@okdrazebnik.cz.

Věřitelé

Do dražby nepřihlásil svou pohledávku žádný věřitel.

Předkupní právo

Předkupní právo nebylo prokázáno.

Spoluvlastnictví

Spoluvlastnické právo nebylo prokázáno.

Věcná břemena

Věcná břemena, výměnky a nájemní, pachtovní či předkupní práva, která prodejem nemovité věci v dražbě nezaniknou, nebyla zjištěna (§ 336a odst. 1 písm. d) o.s.ř.

Přílohy

Stav
Nebylo podání
Číslo
250176
Druh
Online
Způsob licitace
Anglický
Dražební jistota
100 000 Kč
Nejnižší podání
1 500 000 Kč
Odhadní cena
2 500 000 Kč
Minimální příhoz
5 000 Kč
Maximální příhoz
Neomezený
Typ
Veřejná dražba
Začátek
29. 10. 2025 9:00
Konec
29. 10. 2025 9:30
Počet účastníků
0
Počet podání
0
Středočeský kraj, Kolín
Přejete si dostávat e-mailem jednou týdně nové nabídky?